Porte va-et-vient / Porte battante anti-pince doigts
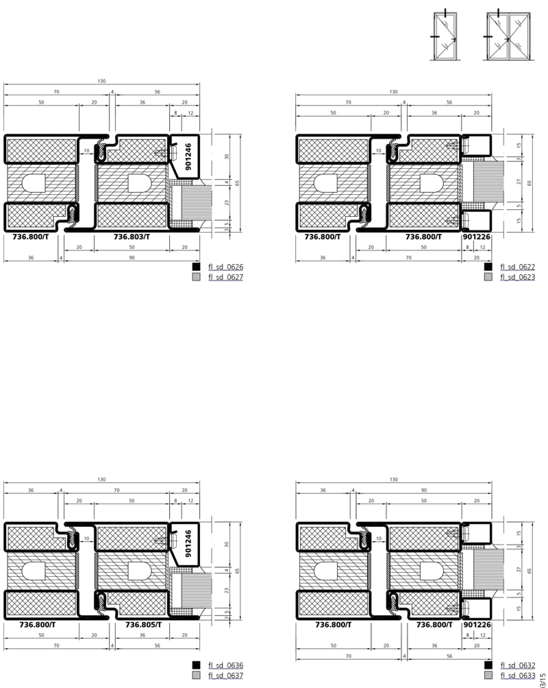
Un passage libre sans entrave et une protection anti-pince doigts réunis dans la même porte. Le système forster presto permet de réaliser des portes va-et-vient affleurées pare-flammes à un ou deux vantaux, équipé avec une protection anti-pince doigts fiable, autant du côté serrure que du côté paumelles. Les profilés ronds empêchent le pincement des doigts au niveau de la rotation de la porte. Ils garantissent l'absence de zones d'écrasement et de cisaillement selon DIN 18650 et EN 16005. Ideaux pour bâtiments très fréquentés par exemple centres commerciaux, hôpitaux, écoles, aéroports.
Les faces vues très étroites garantissent une esthétique mise en valeur. Ces portes répondent aux critères de longévité les plus extrêmes.
Données techniques | |
---|---|
Matières premières | acier |
Dimensions | max. 1380 × 2326 mm 1 vantail E30 / E60 max. 2418 × 2307 mm 2 vantaux E30 / E60 |
Performances* | pare-flammes E30/EW30 et E60/EW60 protection doigts selon DIN 18650 / EN 16005 |
Caractéristiques du système | systèmes de ferme-portes intégrés et cachés aussi avec largeurs des vantaux inégaux |
*tenir compte des homologations nationales



Tour CMA / GCM, Marseille
porte va-et-vient E30
Marseille, Frankreich
PLAQUETTES | portes et cloisons pare-flamme |
MISE EN OEUVRE / PRESCRIPTION | Porte va-et-vient / Porte battante anti-pince doigts |
tableau du système forster presto | |
indication générale pour la mise en oeuvre | |
DWG | |
INSTRUCTIONS | instructions d'emploi et de sécurité |
instructions de montage et de maintenance | |
instruction complémentaire pour éléments coupe-feu | |
DÉCLARATION ENVIRONNEMENTALE DE PRODUIT (EPD) | porte en acier et en acier inox |
VIDEOS | ![]() |