Fassade mit Aufsatzprofilen
FLEXIBEL, SCHNELL, WIRTSCHAFTLICH. Vorhangfassaden forster thermfix light bieten, dank freier Wahl der Unterkonstruktion, dem Planer und Architekten ein grosses Mass an Gestaltungsfreiheit. Das System ermöglicht das problemlose Aufbringen eines Dichtungssystems auf handelsübliche Stahl- und Aluminiumprofile und Holzunterkonstruktionen.
Optimal kombinieren lassen sich dazu die wärmegedämmten Türen und Fenster aus dem System forster unico und unico XS.
Technische Daten | |
---|---|
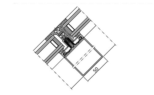
Materialvarianten | Unterkonstruktion Stahl, Aluminium, Holz Forster Aufsatzprofile in Stahl und Aluminium Andruckprofile in Aluminium Abdeckprofile in Aluminium und Edelstahl |
Leistungseigenschaften* | Uf 1.0–2.2 W/(m²⋅K) Schrägverglasung Uf 1.1–2.2 W/(m²⋅K) Vorhangfassade Luftdurchlässigkeit 1200 Pa Schrägverglasung, AE 750 Vorhangfassade Schlagregendichtheit 1200 Pa Schrägverglasung, R7 600 Pa, dynamisch Pmax 1125 Pa Vorhangfassade Widerstand gegen Windlast 2400 Pa, Sicherheitslast 3600 Pa Schrägverglasung, 3000 Pa Vorhangfassade Stossfestigkeit nach EN 14019: I 5 (von innen), E 5 (von aussen) |
Systemmerkmale | Dachneigung 0–75° (innen), 10–75° (aussen) Schlanke Ansichtsbreiten 50 mm Individuelle Profil- und Oberflächengestaltung |
Varianten | Vorhangfassade Schrägverglasung Brandschutz-Schrägverglasung EI30 |
*länderspezifische Zulassungen beachten



Kirche Saint Honoré d'Eylau
wärmegedämmte Verglasung und Rauchschutztüren E30
Paris, Frankreich
forster thermfix light und forster presto


Die alte Tramremise De Hallen
Wärmegedämmte Schrägverglasung
Amsterdam, Niederlande
forster thermfix light

Technikum für Kraftfahrzeugtechnik HTW
Fassade, Fenster und Eingangstüren mit Wärmedämmung
Dresden, Deutschland
forster thermfix light
forster unico


LMB Technik + Bildung
wärmegedämmte Fassade
Weinfelden, Schweiz
forster thermfix light




Sportplatz Bergholz
Wärmegedämmte Pfoste-Riegel Fassade und Eingangtüren, Brandschutztüren und Verglasungen EI30 im Inneren des Gebäudes
Wil, Schweiz
forster unico
forster thermfix light
forster fuego light



Hotel Le Prese
Fassade und Hebeschiebetüren mit Wärmedämmung, flächenbündig verblechte Türen, teilweise mit Glasausschnitt
Poschiavo, Schweiz
forster unico
forster thermfix light
FLYER | Wärmegedämmte Vorhangfassaden |
VERARBEITUNG | Verarbeiterordner Fassaden mit Aufsatzprofil forster thermfix light |
Systemübersicht forster thermfix light | |
allgemeine Verarbeitungshinweise | |
PLANUNG | Planungsunterlagen Fassaden mit Aufsatzprofil forster thermfix light |
DWG | |
UMWELT PRODUKTDEKLARATIONEN (EPD) | Fassaden in Stahl / Edelstahl |